Wrestling Training Facility

Overview

  • The University of Northern Iowa will build the next 100-year facility to serve as the home for UNI Wrestling
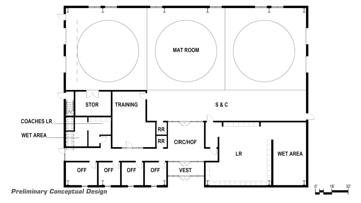
  • The new facility will meet the program's existing and anticipated future needs with room for multiple mats, weight and cardio training space, locker room, training room and rehabilitation space, as well as office space for the wrestling staff.
  • Elements of West Gym will be incorporated into the design of the new training facility

Projected Costs: $5 million

Give Now   Gift Form

"The people around our athletes are the most important, but having a facility that meets our needs is critical. I'm thinking about how we can get our next 100-year-old building. How that will happen is a lot of fans, a lot of donors and a lot of people who believe in what we're doing beyond the wrestling mat."

UNI Head Wrestling Coach, Doug Schwab

Project Description

UNI Wrestling has a storied legacy spanning 100 years. Fundraising for a new training facility has been added to the Our Tomorrow campaign to carry the Panther Train into a brighter future.This project will be solely financed by private gifts. With the rallying support of our Panther wrestling community, we will build a facility that empowers our student-athletes to compete at the highest level for years to come.

UNI Wrestling training facility features

  • Weight and cardio training space
  • Multiple mats
  • Locker rooms
  • Office space for wrestling staff
  • Rehabilitation room
  • Training room

For more information, please contact John Mosbach at john.mosbach@uni.edu or 319-273-7817.

Visuals

Conceptual Renderings